L’agence a une mission de permis de construire, dans le cadre de la construction de l’unité de méthanisation.
L’environnement du projet comprend différentes entités patrimoniales. L’agence à menée une étude de site approfondie présentant l’implantation du projet dans son contexte géographique. L’étude a montré les vues possibles sur le terrain depuis les sites patrimoniaux alentours. Elle détaille également le rapport de la parcelle à son environnement proche. A partir de cette étude, l’agence a défini l’implantation des constructions et le projet paysagé en collaboration avec le bureau d’études SCE.
Le programme de la Centrale bio-méthane était constitué entre autres: d’un bâtiment de bureau de 240 m², de deux bâtiments Process de 1 300 m², de deux hangars de stockage de 4 800 m² et des différents équipements techniques inhérents au process.
Le projet de Restructuration de la station d’épuration comprend différentes typologies de travaux : le remplacement des ouvrages de prétraitement, l’ajout d’un traitement tertiaire, la mise en place d’un groupe de production d’eau industrielle, différentes interventions sur les ouvrages existants.
La particularité du projet est que l’unité foncière est soumises à différentes zones urbaines : en espaces naturels protégés et en une zone réservée aux équipements publics. Le PLU de la commune étant en cours de révision au moment des études, le maitre d’ouvrage a souhaité que la restructuration soit également cohérent avec le PLUi en projet.
Les volumétries et formes des constructions sont définies par les contraintes techniques de chaque ouvrage.
Les toiture du local process et de l’aire de stationnement sera couverte de panneaux photovoltaïques dont l’électricité produite sera consommé sur site et le surplus de production sera revendu. Cet équipement répond à la volonté du maitre d’ouvrage d’améliorer les performances énergétiques de la station d’épuration.
Le projet de Réhabilitation de la station d’épuration a été engagé pour répondre aux besoins supplémentaires liés au développement de l’urbanisation sur la commune. Le nouvel équipement permettra également un traitement optimal des eaux usées qui répondra aux enjeux de préservation de la qualité du milieu.
Le projet comprend la construction de plusieurs cuves et bassins plantés ainsi qu’un local d’exploitation. Les façades de ce bâtiment sont bardées en bois. Les lames verticales sont larges et de finitions brut de sciage. Ce traitement de façade donne une écriture cohérente avec le paysage bocager de la STEP.
Le site de la STEP est à une entrée du bourg de la commune et sur une partie haute du relief. Afin de limiter l’impact de l’équipement dans son environnement, les haies existantes autour du site sont conservées. Elles sont complétées de nouvelle plantations afin d’améliorer l’intégration paysagère du projet.
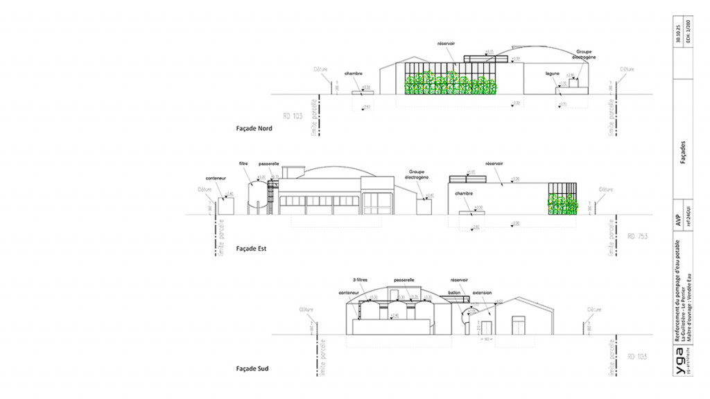
l’unité de production d’eau potable se situe à l’entré du bourg de la commune. Le terrain est également dans le périmètre de protection du monument historique de l’église de Pencran. Le projet architectural fait la synthèse entres les contraintes du site, du process et la demande des services des ABF d’une volumétrie harmonieuse avec l’architecture locale.
Le projet comprend la réalisation d’une lagune, d’équipements techniques et d’un local d’exploitation. La forme et les matériaux de ce dernier sont conçus en cohérence avec la physionomie du château d’eau existant.
Le projet paysager travail le traitement des limites du terrain afin de l’intégrer dans la trame bocagère environnante et dans son contexte d’entrée de bourg. Une haie champêtre est plantée le long de la route communale, dans la continuité de la haie protégée au sud du terrain. Les autres limites sont aménagées sur une typologie de bordure de champs afin de conserver la lisibilité de la parcelle agricole.
yg-architecte a répondu à cet appel d’offre en équipe de maitrise d’œuvre avec le bureau d’étude SCE. En sa qualité d’architecte l’agence prend en charge la mission de permis de construire.
Au sein de l’équipe de maitrise d’œuvre l’agence assure la mission de permis de construire. Le projet de la mise en place d’infrastructure de recharge pour bus électriques répond à l’évolution du matériel roulant de la SIBRA. Le projet s’implante sur son site de remisage en activité, il est donc définit en fonction des contraintes de fonctionnement du lieu. Le programme comprend deux postes de transformations électriques, un abri pour les bus défectueux, un portique de recharge et des murs coupe-feu. Les bâtiments s’implantent dans la continuité des constructions existantes. . L’ensemble des ouvrages seront de couleur grise foncé afin de créer une cohérence entre tous ces éléments qui constituent l’infrastructure de recharge.
yg-architecte assure la mission de maitrise d’œuvre des bâtiments au sein de l’équipe MOE. Il s’agit de quatre locaux techniques liés à la gestion du remisage des bus. Le projet comprend également 2 ombrières couvertes de panneaux photovoltaïques pour la recharge des véhicules. Le terrain du projet se situe à l’interface entre le port et le centre ville de Saint-Nazaire. Le parti architectural est de retranscrire la dualité du site dans la conception des bâtiments. Les constructions seront de forme simple et cubique en cohérence avec leur vocation technique et la physionomie des immeubles voisins. Les façades côté ports, sont laissées en béton brut. Les façades villes, donnant sur l’espace public, sont agrémentées d’un treillis métallique. Il se prolonge sous la forme de pare-vue pour masquer les accès techniques.
Les locaux sont construits dans une bande paysagère qui borde les limites sur rue du terrain. Les treillis sont le support de plantes grimpantes qui intègrent les bâtiments dans ct aménagement.
yg-architecte assure la conception des bâtiments au sein de l’équipe MOE. Le projet comprend deux constructions le poste de transformation et le remisage des CENAQ mobiles (Connexion Electrique des Navires à Quai).
Ces 2 bâtiments sont conçus sur le même principe architectural. Les matériaux choisis répondent à l’usage et à l’activité du port. Le traitement des façades vise à inscrire le projet dans son contexte urbain. Le port de Cherbourg est à proximité de la cité de la mer, un bâtiment classé aux monuments historiques. Le dessin des façades, en bandes horizontales, affine les volumes. La bande principale est traitée avec une matrice structure brique. La brique est présente sur plusieurs constructions du port dont la cité de la mer. La mise en œuvre de cette matrice, rappelle ce matériau dans une écriture contemporaine. Le poste de transformation est surmonté d’un ensemble de pare-vue qui dissimule les équipements techniques de toiture. Ils seront réalisés en tôle perforées nervurées.
Pour répondre aux objectifs de diminution des émissions de gaz à effet de serre, Ports de Normandie va fournir une alimentation électrique à quai pour les navires en escales. Le projet comprend la réalisation d’un poste de transformation sur le site du terminal ferry du port de Ouistreham. yg-architecte assure la conception des bâtiments au sein de l’équipe de maitrise d’œuvre.
Le plancher du bâtiment s’implante à 1 mètre au dessus du niveau du terrain naturel, pour se situer au dessus de la côte de submersion marine. Les proportions du poste de transformation sont liées aux contraintes techniques du projet.
Le choix des matériaux et des couleurs des façades est guidé par une volonté de sobriété et de cohérence avec les constructions existantes sur le site. La façade principale du bâtiment donne sur les aires d’embarquements des navires. Elle est rythmée par les portes et le pare-vue qui créent un jeu de bandes verticales. Le projet sera peu visible depuis l’espace public. Les plantations existantes, qui le longent, produisent un filtre végétal qui masque le bâtiment et particulièrement la façade longitudinale.
L’agence a mené la mission de permis de construire, mais également, pour les démarches d’archéologie préventive, de modification de voirie et d’autorisation de rejet des eaux pluviale.
Le site de l’unité de méthanisation se trouve au cœur de terrains agricoles cultivés. Il est sur un point haut du relief, l’unité de méthanisation sera donc largement visible. L’enjeu du projet est son insertion paysagère. La conception a donc été développée autour du projet paysagé. Lors des études l’agence a participé à la médiation avec les riverains afin de répondre à leurs questions sur l’intégration du projet dans son environnement.
Les ouvrages qui composent l’unité de méthanisation sont des cuves bétons, des bâtiments et silos de stockage, un local social et bâtiment process. L’unité de méthanisation comprend également 2 sites de stockage déportés qui ont fait l’objet d’autorisation d’urbanisme parallèle au permis de construire.
L’agence a une mission de permis de construire, dans le cadre de la construction de l’unité de méthanisation.
L’environnement du projet comprend différentes entités patrimoniales. L’agence à menée une étude de site approfondie présentant l’implantation du projet dans son contexte géographique. L’étude a montré les vues possibles sur le terrain depuis les sites patrimoniaux alentours. Elle détaille également le rapport de la parcelle à son environnement proche. A partir de cette étude, l’agence a défini l’implantation des constructions et le projet paysagé en collaboration avec le bureau d’études SCE.
Le programme de la Centrale bio-méthane était constitué entre autres: d’un bâtiment de bureau de 240 m², de deux bâtiments Process de 1 300 m², de deux hangars de stockage de 4 800 m² et des différents équipements techniques inhérents au process.
L’agence a été mandataire de la mission de permis de construire, pour la construction puis l’extension d’un site de traitement de biodéchets. Cette industrie valorise les déchets alimentaires (reste de restaurants, de marchés, traiteurs, etc.). Le projet concerne le prétraitement des matières. Une unité de méthanisation partenaire et extérieure au site finalise la valorisation en énergie renouvelable et fertilisant naturel.
L’agence a collaboré avec le maître d’ouvrage et le bureau d’étude process pour concevoir le bâtiment conjointement à l’élaboration de la chaine de production. Elle a ensuite accompagné le maitre d’ouvrage dans ses relations avec les différents services instructeurs (aménageur ZAC, mairie, métropole)
Le projet se compose d’un bâtiment process, d’un local social comprenant bureaux et sanitaires et d’une chaufferie.
L’agence yg-architecte à répondu à cet appel d’offre, pour la construction d’une unité de méthanisation, en équipe de maitrise d’œuvre avec les bureaux d’étude SCE et S3D. En sa qualité d’architecte l’agence prend en charge la mission de permis de construire.
L’unité de méthanisation s’implante ou sein du site du sictom Nord Allier. Le projet est cohérent avec son environnement. Il se compose de 2 entités construites : les bâtiments d’exploitations et les cuves. Le parti pris architectural est de créer une unité de l’ensemble construit et de partitionner chaque bâtiment par un jeu de matériaux pour éviter une impression de massivité. Les cuves sont symboliques de l’installation, leurs dômes sont de couleurs vert foncé afin de les identifier dans l’environnement du sitcom. Le terrain du projet est à l’interface entre la route départementale et des espaces boisés. Un traitement paysagé des limites a été élaboré afin d’intégrer le projet dans son environnement paysagé.
Le projet d’unité de méthanisation produit du gaz méthane à partir de bio-déchets. Le méthane est injecté dans le réseau de distribution de gaz naturel.
Le projet architectural se compose de 2 entités construites de part et d’autre d’une cour de service. Les constructions seront de formes simples et cohérentes avec la typologie des bâtiments agricoles, présent dans l’environnement du terrain. Le choix des matériaux des façades est guidé par une volonté de sobriété et d’unité entre les différentes constructions. Des couleurs neutres ont été choisies afin de réduire l’impact des volumes dans le paysage.
La composition paysagère a été définie en cohérence avec les typologies observées sur le terrain. Le projet Paysager se structure sur 3 aménagements : une haie champêtre, une haie bocagère, une prairie humide.
L’agence est missionnée pour le permis de construire, du projet d’extension d’un équipement de prétraitement de biodéchets. Les déchets alimentaires issus de la collecte sur la métropole de Strasbourg sont valorisés puis envoyés vers une unité de méthanisation partenaire. Le projet se compose d’un bâtiment de réceptions des biodéchets, des cuves d’hygiénisation et de stockage de la ressource, ainsi que divers équipements techniques liés au process. L’emprise au sol de ses constructions représente une surface de 337 m².
L’extension s’inscrit dans la continuité du volume existant. Le choix des matériaux de façade est guidé par une volonté de sobriété et de cohérence avec ceux existants sur le bâtiment existant. Le projet a été conçu en tenant compte des contraintes techniques du process, et d’exploitation du site.